コンフォリア鷺沼三丁目 | ||||||||||||||||
|
||||||||||||||||
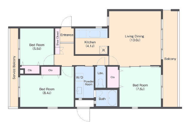
コンフォリア鷺沼三丁目 のお話し メープル不動産の代表(と言っても夫婦二人でやっておりまして、私が代表・妻が副代表ですが)塚越がこちらの物件を見て参りました! 分譲賃貸の様な外観ですが87.25平米、3LDKの一般賃貸マンションで、エレベーターはございませんが3階建の低層マンション、オートロックに宅配ボックスがございまして、2700幅のシステムキッチンには食器洗浄機も付いておりました 田園都市線「鷺沼」からは徒歩10分、「たまプラーザ」からは徒歩13分、どちらの駅も急行停車駅となっています まず最初の印象ですが「外観が立派」! ![]() こちらが南向きの棟になります ![]() こちらは東向きの棟です ![]() 同じく東向きの棟ですが、駐車場出入り口側から撮影しました ![]() 周辺は鷺沼三丁目の住宅街でこの道路は生活道路で車の通りは殆どありませんでした ![]() 駐車場の出入り口です ![]() 駐車場がかなり広いので今迄余り運転をしてこなかった奥様でも、落ち着いてゆっくり駐車出来そうな雰囲気がありました 入居者さんは駐車場からも入れます ![]() この扉から鍵を使って敷地内に入れます ![]() 駐車場から入るとこんな景色です 一旦、戻ってエントランスから入りますが ![]() こちらがゴミ置き場です ![]() 外部からエントランスへは、こんなデザインになっておりました これから建物内部に入って参ります ![]() ![]() 宅配ボックスがあります ![]() オートロックです ![]() オートロックを抜けたところにベンチがあります ![]() 敷地内右手 ![]() そして左手 これから室内に入って参りますがその前に間取りのご紹介です 基本の間取りは一種類と考えて良いと思います ![]() 基本の間取り(87.25平米 3LDKマンション) ![]() 反転タイプ ![]() そして側面に窓があるタイプ(一部の角部屋です) 玄関から見て参りましょう ![]() 分譲マンションの様に下駄箱(今はシューズボックスなどと申したりもします)が広いです まずはLDKをご覧頂きます ![]() 窓面、すごく広く取られていました ![]() LDKに隣接するお部屋の境が引戸なので開けておくと開放感ありました 次はそのLDKに隣接するお部屋です ![]() 洋室です ![]() このお部屋の収納です 玄関側には2室あります ![]() 玄関側の洋室@ ![]() 洋室@のクローゼットです もう一部屋がこちら ![]() 玄関側の洋室A ![]() 玄関側の洋室Aのクローゼットです 一般賃貸マンションでは玄関側のお部屋に壁掛けタイプのエアコンが設置出来ないことが多いのですが、コンフォリア鷺沼三丁目は両面バルコニーという事もあって玄関側のお部屋二部屋ともに大丈夫でした 気になる水回りもご覧ください ![]() ![]() ![]() ![]() ![]() 浴室暖房乾燥機もありました キッチンはシステムキッチンです! 天板は3種類床の色に合せて配色されており、どのお部屋を選ぶかにより色が異なります ![]() ![]() ![]() ![]() ![]() ![]() 一般賃貸ではほぼ見た事がないですが食器洗浄機も付いていました 次は階数による景色の違いも見て頂きましょう 最初にお伝え致しましたが「コンフォリア鷺沼三丁目」には南向きの棟と東向きの棟があります まずは南向きの棟 1階です ![]() 1階でこの景色 高さがあるので人目が気になりません ![]() 南側1階 バルコニー前はこんな感じ 南向きの棟 2階 ![]() 南向きの棟 2階バルコニーです ![]() 南向きの棟 2階からの景色です 南向きの棟 3階 ![]() 南向きの棟 3階バルコニーです ![]() 南向きの棟 3階バルコニーからの景色です 次は北側お部屋から見える敷地内で、階による違いをご覧ください ![]() 1階のお部屋からみた北側の景色(敷地内) 2階 ![]() 2階のお部屋からみた北側の景色(敷地内) 3階(最上階) ![]() 3階のお部屋からみた北側景色(敷地内) 次は東向きの棟です ![]() 東向きの棟 1階バルコニーです ![]() 東向きの棟 1階バルコニーからの景色です 東向き棟1階で駐車場出入り口に近いお部屋がこちら ![]() 東向きの棟 1階バルコニーです ![]() 東向きの棟 1階バルコニーからの景色です 東側の1階も高さが確保されていて人目が余り気にならないと思います 東向きの棟の西側です ![]() 1階のお部屋からみた西側敷地内 ![]() 1階で駐車場出入り口に近いお部屋の西側敷地内 2階 ![]() 2階のお部屋からみた西側敷地内 ![]() 2階で駐車場出入り口に近いお部屋の西側敷地内 3階(最上階) ![]() 3階のお部屋からみた西側敷地内 ![]() 3階で駐車場出入り口に近いお部屋の西側敷地内 サイズを測った箇所がありますので、最後にご報告です ![]() ![]() こちらはシステムキッチンのサイズ(2700幅) ![]() ![]() こちらはお風呂のサイズ(1800×1400) ●コンフォリア鷺沼三丁目 ![]() ・所在地 川崎市宮前区鷺沼3-13-14 ・田園都市線「鷺沼」駅徒歩10分 ・田園都市線「江田」駅徒歩13分 ・建物延べ床面積 87.25平米 ・築年月 2009年4月 ・構造 鉄筋コンクリート造3階建 ●間取り ![]() ![]() ![]() ・LDK17.1帖、洋室8.4帖、洋室7.6帖、洋室5.9帖 ●設備 ・システムキッチン ・エアコン ・追炊き ・浴室暖房乾燥機 ・TVモニターフォン ・ディンプルキー(ダブルロック) ・オートロック ・宅配ボックス ・ネット無料(つなぐネット限定) ●募集条件 ![]() ・普通賃貸借契約(2年毎に更新が可能) ・ペット相談可(小型室内犬一匹か猫二匹まで 敷金加算あり) ●学校区 ・小学校 「鷺沼小学校」まで 徒歩で約4分:320m ・中学校 「有馬中学校」まで 徒歩で約19分:1490m ![]() ●周辺環境 ・コンビニ ファミリーマートまで 徒歩9分:660m ・スーパー 東急ストア江田店まで 徒歩9分:670m ![]() 金融機関 ・三菱UFJ銀行 鷺沼支店 ・三菱UFJ銀行 宮崎台支店 ・みずほ銀行 鷺沼支店 ・城南信用金庫 鷺沼支店 ・三井住友銀行 鷺沼出張所 ・川崎信用金庫 鷺沼駅前出張所ATM ![]() 管理会社の担当さんに少しお話を伺えたのですが元は社宅だったマンションを一般賃貸物件として貸し出すにあたってリフォームをしたとのことです 2階や3階でしたらエレベーターが無くても個人的には問題ないと思っており目の前に高い建物がなく眺望が良いので、僅かな撮影の時間の時もちょっと気分良かったりしました(個人的には眺望や周辺環境が一番気に入りました) 1階のお部屋でも生活道路からは少し高くなっているので人目が気にならず、下階への生活音を気にしなくて良いので小さいお子様のいるご家庭には特にお薦めです 分譲賃貸マンションの場合、家主さんが戻る迄の2年間や3年間など退去期限が決まっている定期借家契約が多いのですがコンフォリア鷺沼三丁目の場合は更新可能な一般賃貸という点もポイントです! 設備に関してはシステムキッチンに食器洗浄機という所に目が行きがちですが、全てのお部屋にエアコンが設置出来ること!これって一般賃貸マンションの場合意外に難しいことなので、実はかなりのポイントです エアコンが設置出来ないお部屋は必然的に荷物部屋になりそうですが、エアコンが設置出来ることで、子供部屋であったり寝室であったりと用途が広がります!ご家族が増えても永く住めるのもコンフォリア鷺沼三丁目の魅力です この記事を書いた メープル不動産 代表・塚越についてはこちら コンフォリア鷺沼三丁目について メープル不動産の塚越に質問してみたい方は こちら ![]() ![]() ●原色賃貸図鑑の一番下に募集中のお部屋が表示されます(満室の場合には表示されません) ![]() このページのトップはこちら ![]() お部屋探しを始める方はこちら
|
||||||||||||||||
![]() |
||||||||||||||||
|トップ|リクエスト|お問い合わせ|賃貸情報|会社概要|アクセス|免責事項|個人情報保護方針| | ||||||||||||||||
Copyright(C) All Rights Reserved by メープル不動産 神奈川県知事(3)第27242号 |